找回密码
 注册会员

QQ登录

只需一步,快速开始

扫一扫,访问微社区

楼主: 七月的风

[求助] 磨床头架轴承问题

  [复制链接]
发表于 2014-9-5 21:21:06 | 显示全部楼层
关于安装方式,楼主拆原机的时候没留意啊?$ Q+ V/ @; |: |  u/ {
轴承上做的记号,是给配对用的。买的时候,配好对的轴承是拴在一起的,或者在同一个包装盒里。. N0 X; b" D6 _0 ~, J( `
两个轴承间如何有隔套,那么内外隔套是有高度差的。轴承厂会明确给出这个差值。7 @" C3 d) `8 q( [+ O

点评

没见过轴承厂给出隔套的高度差。 一般都是配研,用工装组装后测量预紧力。 或者放上一个隔套,测量另一隔套的尺寸,然后配研。  详情 回复 发表于 2014-9-6 07:28
发表于 2014-9-6 07:28:11 | 显示全部楼层
ywjianghu 发表于 2014-9-5 21:21
" q* ?9 ]( S  I, M2 P关于安装方式,楼主拆原机的时候没留意啊?4 }# Y) W- ?2 S$ H% S6 _6 @
轴承上做的记号,是给配对用的。买的时候,配好对的轴承是拴在 ...

& w/ I# T/ e" I8 k' e/ F没见过轴承厂给出隔套的高度差。! R7 Q) P* l! J7 B2 x, P& G0 U" n5 S
一般都是配研,用工装组装后测量预紧力。
' s$ L. x$ {! Y或者放上一个隔套,测量另一隔套的尺寸,然后配研。5 o' y2 m% w( e8 f/ K% _1 r; f

点评

你好! 能否介绍一下这里测量预紧力的方法?  详情 回复 发表于 2014-9-7 21:25
发表于 2014-9-7 21:25:24 | 显示全部楼层
zxq0220 发表于 2014-9-6 07:280 o$ G7 F0 ]" e' B/ c2 e
没见过轴承厂给出隔套的高度差。
8 J. L8 j/ e) I一般都是配研,用工装组装后测量预紧力。5 I& q; O& `% O% ]
或者放上一个隔套,测量另一 ...

, W! B  b  O2 H0 K' b4 ]4 Y+ y你好!  S3 j. Y# @+ ^+ ^
能否介绍一下这里测量预紧力的方法?: ^2 v  s$ Q1 \) g
发表于 2014-9-8 08:23:56 | 显示全部楼层
轴承工艺.pdf (21.18 KB, 下载次数: 37)

点评

谢谢你上传资料! 这个资料是某个企业的内部作业指导? 有几点不明白: 1,内圈施压,应该施加多大压力? 2,测量内圈尺寸,意思是测量内圈的间隔距离吧? 这个间隔距离比较难测量,因为有外圈挡着,只能从轴承  详情 回复 发表于 2014-9-9 20:16
发表于 2014-9-9 09:31:41 | 显示全部楼层
头件拨盘轴承,如果是两个应该背靠背装配
3 x: w' q7 T9 u: V+ b
发表于 2014-9-9 18:50:07 | 显示全部楼层
主轴可以p4级别的轴承,配好对的。贵点值得。: x, N1 a; k- J; o
8 Z- K( f/ F& P0 {
背对背还是面对面根据自己设备使用情况:+ g; T+ ^' P, m7 f* i

; G& ~+ u$ _& \1 I! B轴向受力大还是径向受力大,参考相关资料。
$ j+ {: o% Q% I( G8 Q8 V8 J- e
9 G& B8 D: e- U2 m( c! d0 `装配的主轴本身精度要高,两轴承位的同心度和圆度须在0.001mm以内。
  |9 f# ^$ c& X- j9 z% {
( h6 O' o7 V# F轴承润滑油脂适当,不可太多,影响散热。8 I2 k4 }; V8 e9 ]
; N8 F. B7 d" [& ?$ {7 m. \
装配环境必须清洁干净无尘。3 B$ ^* S$ T% e0 o
* ]" e* s; Y/ g6 T$ R: T
看自身主轴结构,一般有弹簧消除间隙。
( @9 J8 n" i) r) M7 M1 C: K* m) X- y* j, I' W- f
轴向有串动空间,因弹簧有力,所以轴不会串动。
3 E' t: G' U0 z
) o" B/ P- F+ x同时,主轴发热时,轴向串动空间可以让轴受热不受限,不卡死。0 J+ D  U8 \& Q7 F4 p7 m& E" w, q9 M1 a
) ^/ B0 i' C+ j+ M
装配好先低速运转(如果有低速度)1-2小时。可以发热后稳定。
1 E1 _1 X% N" h* D4 \4 B+ S- ^2 @  A) ]" }8 p0 D$ M
高速运转0.5小时。可以发热后稳定。& t* y: D0 a( k1 `: p& V& F% o
$ L" ~: i1 _1 w# H" w& y& U
所有发热不可高于摄氏30°* H5 ]' P- o5 U; k9 h9 o
5 t8 \; `+ k3 a, M" t7 m7 v
听声音,要平稳无噪声。
9 k/ h( u. r6 e4 ?& r" u! T4 W( `1 @, Y4 s. n2 J- g
调试完毕,无异样,
% h( _( F6 L6 ^5 Y* e% S+ o5 {2 L! H! S+ Z- d
打表测主轴工作位精度,跳动小于0.001mm。
* k% X/ e2 h' s6 I; b
* R4 G6 H5 O0 W9 m. z, }% J9 ?合格。成功了!$ S8 f% S( q9 m( ?$ y& p

% R4 S& u7 Z' M. K如有发热烫手和噪音尖叫,立即停机。/ J" w0 G2 ]; ]  d; k

; s4 S) ?6 B+ O5 \6 Z3 O重新拆解,检测各个零部件,总有地方出了问题。# @4 u0 j9 W  r: Z9 G/ y2 w' Z: ?! V6 Q
* o0 \' R9 u% Z: J8 a
一回生二回熟。6 @8 E/ q& x4 ^7 w+ ]6 A
$ ^8 L! [2 D0 c5 v: C8 b
最后被你降服。2 @2 b6 Y6 C9 m1 S  t1 e

' [; u; ~% A' Q8 r5 p0 Q5 J
$ D* ?- Y4 }2 i) O8 v+ z! {$ y& ~6 T& G, f
) c% s( \. c* X! U  Z  V" Q. K2 v% _" z

. x- V- e' j) s' a8 A8 A" c* x
6 i- U8 @0 q' ~: P( I. H( c( a  S0 Z5 d
  y& o4 R2 f2 Q; w$ x) e

评分

参与人数 1威望 +25 收起 理由
研磨者 + 25 很给力!

查看全部评分

发表于 2014-9-9 20:16:37 | 显示全部楼层
/ a/ b4 s6 k7 e0 J8 e3 I7 ~
谢谢你上传资料!
! W! W& A- Z" V这个资料是某个企业的内部作业指导?
& y( _- x, o9 c0 }/ ~- ?/ t有几点不明白:
; `4 d) @0 k; s# [1,内圈施压,应该施加多大压力?
6 s8 x: a  h$ t" m% b; P: t& C2,测量内圈尺寸,意思是测量内圈的间隔距离吧?, M, g/ M3 N5 Q, l9 X2 O
这个间隔距离比较难测量,因为有外圈挡着,只能从轴承内孔中伸进量块去,要测量准,难。+ U; \) C; m( S4 L
3,用测量摩擦力的方法作为检验标准,似乎不是那么合适。因为摩擦力随接触面的表面光洁度变化,和接触面的润滑状态还有关。. @& B6 A/ L- o) }# a6 n- m
纯粹属于想象,请指点。
+ H  [0 u. C- ~8 Y% X% U

点评

内圈施压只要能消除轴承间隙就行,一般用手压紧即可,但要注意保持平衡,不要歪斜。 如果内圈测量不方便,可以将轴承方向反向摆放,在轴承外圈施压,测量轴承外圈的间隔。不过误差可能会大。 测量只是确定隔环需要  详情 回复 发表于 2014-9-10 07:48
测量的是内圈和外圈之间的高度差。 这种规格的轴承施加的力一般在200N~400N左右,可以多试验几次得出确定值。因为轴承的游隙消除后再施加有限的力不会有明显变化。 可以做一个小工装,在接触内圈的地方挖几个洞。  发表于 2014-9-9 23:24
发表于 2014-9-10 07:48:33 | 显示全部楼层
ywjianghu 发表于 2014-9-9 20:16
" Z! J" s/ ]* |' l! ]谢谢你上传资料!2 |! _: l4 t% o# x1 D
这个资料是某个企业的内部作业指导?
! l, Z% r4 @# Z有几点不明白:

9 T. x7 j/ L8 N; e: t% n8 p* l内圈施压只要能消除轴承间隙就行,一般用手压紧即可,但要注意保持平衡,不要歪斜。
9 r  Y! b  R8 T/ q* h8 Z6 @7 t$ V/ w如果内圈测量不方便,可以将轴承方向反向摆放,在轴承外圈施压,测量轴承外圈的间隔。不过误差可能会大。
9 q- N; ]! M4 I8 B  b" {$ Q测量只是确定隔环需要研磨的尺寸,有误差可在后面测量预紧力时再调整8 o+ ?5 Z/ P) v6 T- z( ]
因隔环两端面是研磨表面,轴承端面也是磨削表面,所以摩擦力是一定的,不用考虑太多。1 x' t' [2 Y" [6 B. Z; n8 C
发表于 2014-9-10 08:09:44 | 显示全部楼层
一对p4的轴承,折腾来折腾去,哐当,完蛋了!不信都买一对来试试看!呵呵!
发表于 2014-9-12 16:06:33 | 显示全部楼层
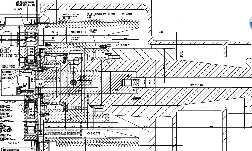
瓦德里希轧辊磨床头架图纸
1.jpg
QQ图片20140912160938.jpg
发表于 2014-9-19 15:52:17 | 显示全部楼层
找专业人来装配。顺道也可以学习下,主轴轴承装配不好会发热哟
发表于 2014-9-23 10:50:04 | 显示全部楼层
前面用P4后面用P5就可以了
发表于 2014-9-23 23:20:43 | 显示全部楼层
我发现真好多人才………。…大哥呀这种是叫推力轴承呀。不要装错了呀你买回时不是已捆好的吗。要同方向呀。不要弄错了。这种轴承有ABCD型号的。不同的有不同的精度。安装时一定记得不要打敲呀。要轻推进去。力要平行。不能硬来呀
发表于 2014-9-27 08:05:37 | 显示全部楼层
怎么样拆就怎么样装
发表于 2014-10-14 13:36:09 | 显示全部楼层
学习一下拿分走人呵呵,楼下继续!
发表于 2014-10-31 12:18:59 | 显示全部楼层
高精度轴承精度检测、预紧调整,都是有精密工装的,讲的是安装后精度微米级,预紧调整也几乎是微米级的(重载可以是丝级的),玩到几万转,一对轴承就上千啊。慎重慎重!比如外圆磨头架,转速低,但精度要求高,重载预紧有点过,轻载又不够,所以常见的是中载。至于预紧对轴承精度的影响,都百度一下吧。
! }+ ^3 l) J3 M1 f0 m/ g' u。。。。。。。。。。。。。。太多了,不说了。一只微米表加平板是在最恶劣状况下玩精密轴承是起码条件。都读书去,书上都有!
您需要登录后才可以回帖 登录 | 注册会员

本版积分规则

中国磨床技术论坛
论 坛 声 明 郑重声明:本论坛属技术交流,非盈利性论坛。本论坛言论纯属发表者个人意见,与“中国磨削技术论坛”立场无关。 涉及政治言论一律删除,请所有会员注意.论坛资源由会员从网上收集整理所得,版权属于原作者. 论坛所有资源是进行学习和科研测试之用,请在下载后24小时删除, 本站出于学习和科研的目的进行交流和讨论,如有侵犯原作者的版权, 请来信告知,我们将立即做出整改,并给予相应的答复,谢谢合作!

中国磨削网

QQ|Archiver|手机版|小黑屋|磨削技术网 ( 苏ICP备12056899号-1 )

GMT+8, 2026-3-12 20:08 , Processed in 0.155961 second(s), 20 queries .

Powered by Discuz! X3.5

© 2001-2025 Discuz! Team.

快速回复 返回顶部 返回列表